Descrizione
In ottima e ricercata posizione, a pochi passi da tutti i principali servizi cittadini, proponiamo in vendita un’elegante villa singola su due livelli, composta da due appartamenti, con giardino privato.
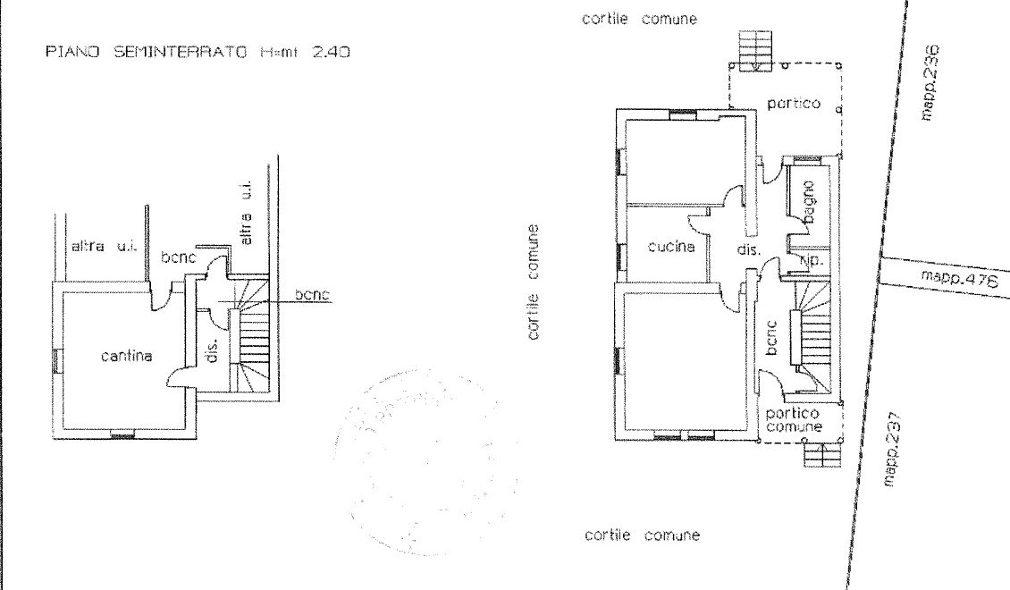
L’immobile è attualmente suddiviso in due unità immobiliari indipendenti, un comodo appartamento di due locali a piano rialzato ed un ampio appartamento di tre locali al piano primo, oltre a vari locali cantina a piano seminterrato; è ideale per un uso bifamiliare, ad esempio genitori e figli, oppure per una fusione degli ambienti per creare un’unica grande abitazione.
L’unità a piano rialzato al momento è locata con contratto in essere fino a luglio 2027, garantendo rendita immediata.
Completano la proprietà un comodo box auto e giardino privato sui quattro lati.
Proprietà ideale per chi cerca comfort, privacy e un’ubicazione invidiabile. Ottima opportunità!















































